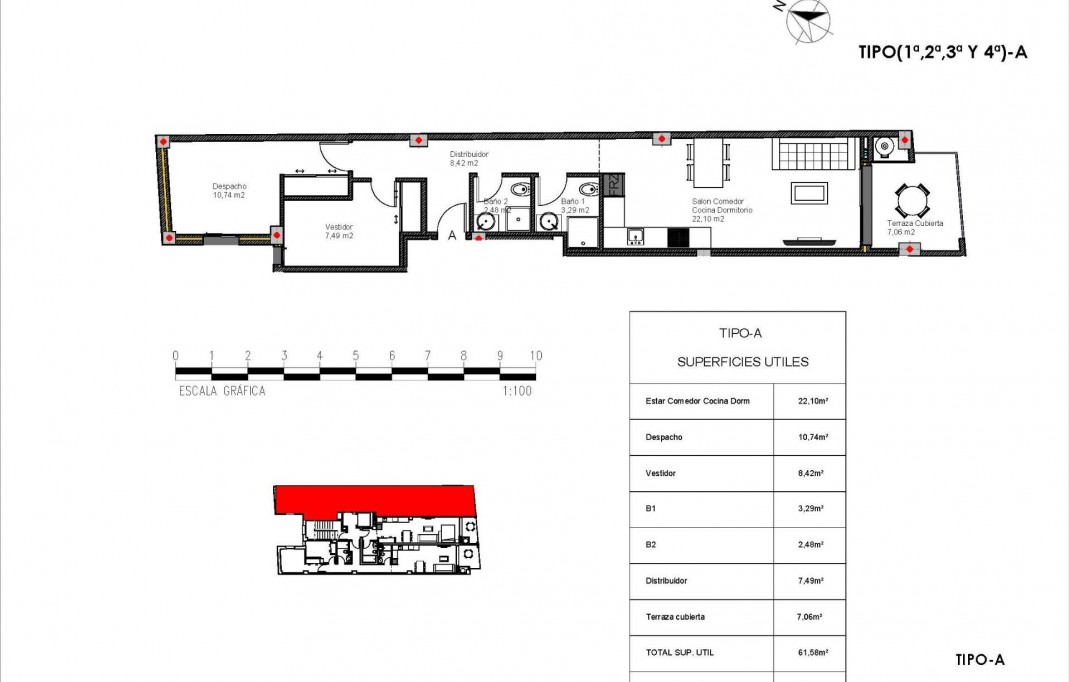
Nieuwbouwwoningen in Torrevieja, op slechts 100 meter van het strand van Los Locos Een toplocatie in het hart van Torrevieja Ontdek deze gloednieuwe appartementen en penthouses in een van de meest gewilde wijken van Torrevieja, op slechts 100 meter van het strand van Los Locos. Deze levendige wijk ligt in het centrum van de stad en biedt alle essentiële voorzieningen binnen handbereik, waaronder supermarkten, winkels, restaurants, cafés en openbaar vervoer. Torrevieja is een bekende kustplaats aan de Costa Blanca, beroemd om zijn milde mediterrane klimaat, levendige sfeer en het hele jaar door een levensstijl aan zee. Moderne appartementen met ruime indelingen Dit exclusieve nieuwe project bestaat uit slechts 17 appartementen en penthouses, variërend van studio's tot appartementen met twee slaapkamers, ontworpen om comfort, functionaliteit en een eigentijdse stijl te bieden. Alle woningen beschikken over een open keuken die in verbinding staat met de woon-eetkamer, voorzien van inbouwapparatuur, wat zorgt voor lichte en uitnodigende interieurs. De slaapkamers zijn voorzien van inbouwkasten en de badkamers zijn volledig uitgerust met wastafels, spiegels, vloerverwarming en doucheschermen. Hoogwaardige afwerking en energiezuinige voorzieningen De appartementen zijn gebouwd met hoogwaardige materialen, waarbij veel aandacht is besteed aan energie-efficiëntie. Het aluminium kozijnwerk aan de buitenzijde is voorzien van thermische onderbreking en dubbele beglazing voor thermische en akoestische isolatie. Gemotoriseerde zonwering zorgt voor extra gemak en veiligheid. Elke woning is voorzien van voorinstallatie voor airconditioning en kanaalverwarming, versterkte voordeuren, een verlichtingspakket en witgelakte binnendeuren. Warm water wordt geproduceerd via een aerothermisch systeem, wat het energieverbruik vermindert en de duurzaamheid verhoogt. Dakterras met gemeenschappelijk zwembad Bewoners kunnen genieten van een exclusief dakterras met een gemeenschappelijk zwembad, barbecue, sauna en ligweide met ligstoelen, bereikbaar via een lift of trap. Deze privéruimte is perfect om te ontspannen, te zonnen en te genieten van een panoramisch uitzicht over de stad. Het biedt een rustig toevluchtsoord boven de drukke straten van Torrevieja en voegt aanzienlijke waarde toe aan het project. Levensstijl en omgeving van Torrevieja Torrevieja staat bekend om zijn uitgestrekte kustlijn, zandstranden en iconische zoutpannen. Het natuurpark Lagunas de La Mata y Torrevieja ligt op ongeveer 5 km afstand en biedt wandelpaden en unieke landschappen. Verschillende golfbanen, zoals Villamartin Golf en Las Colinas Golf, liggen tussen de 12 en 18 km verderop. De jachthaven en de haven van Torrevieja liggen op ongeveer 2 km afstand. De luchthaven van Alicante ligt op ongeveer 45 km afstand en de internationale luchthaven van Murcia op ongeveer 65 km, beide met uitstekende Europese verbindingen. Uw woning aan de kust wacht op u Mis deze kans niet om een modern, nieuw gebouwd appartement vlakbij het strand in Torrevieja te kopen. Neem vandaag nog contact met ons op voor meer informatie of om een privébezichtiging te regelen.