Campoverde47 casas

Torrevieja · Alicante Bungalow · Nieuwbouw

259.000 €

Torrevieja · Alicante Bungalow · Nieuwbouw

Beschrijving

Kenmerken

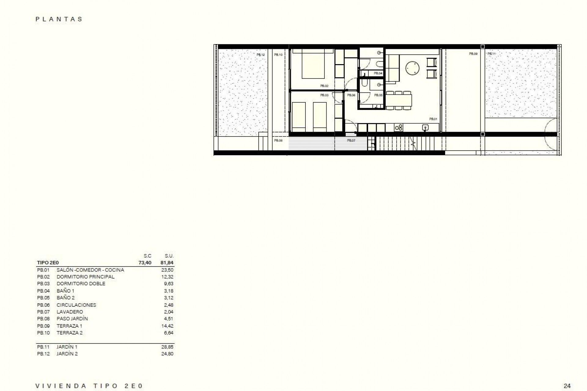
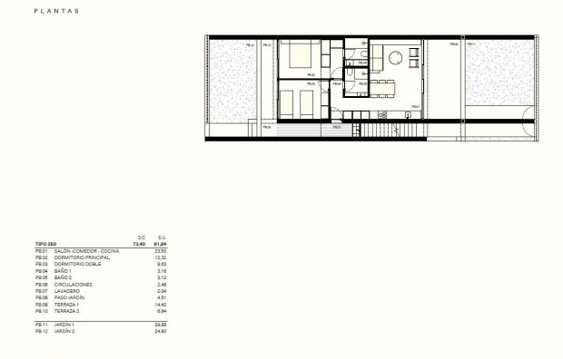
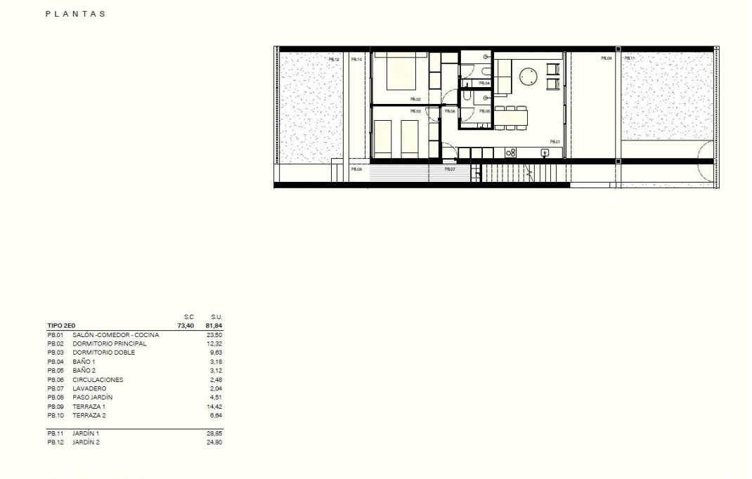
  • 81 m2
  • 53 m2
  • 2
  • 2
Slaapkamers: 2
Badkamers: 2
Gebouwd: 81m2
Plot: 53m2
Zwembad: Ja
Garden
Gated
Number of Parking Spaces: 1
Near Golf / Golf Resort Property
Near Schools
Air Conditioning: Pre-Installed
Near Commercial Center
Double Bedrooms: 2
Communal Pool
Location: Coastal, Urbanisation
Useable Build Space: 73 Msq.
Beach: 3500 Meters
Terrace: 20 Msq.
Parking - Space
Storage / Trastero

Plaats

Stel uw vraag

Responsable del tratamiento: Bart Groeneveld, Finalidad del tratamiento: Gestión y control de los servicios ofrecidos a través de la página Web de Servicios inmobiliarios, Envío de información a traves de newsletter y otros, Legitimación: Por consentimiento, Destinatarios: No se cederan los datos, salvo para elaborar contabilidad, Derechos de las personas interesadas: Acceder, rectificar y suprimir los datos, solicitar la portabilidad de los mismos, oponerse altratamiento y solicitar la limitación de éste, Procedencia de los datos: El Propio interesado, Información Adicional: Puede consultarse la información adicional y detallada sobre protección de datos Aquí.
WhatsApp