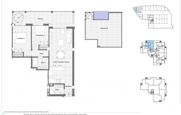
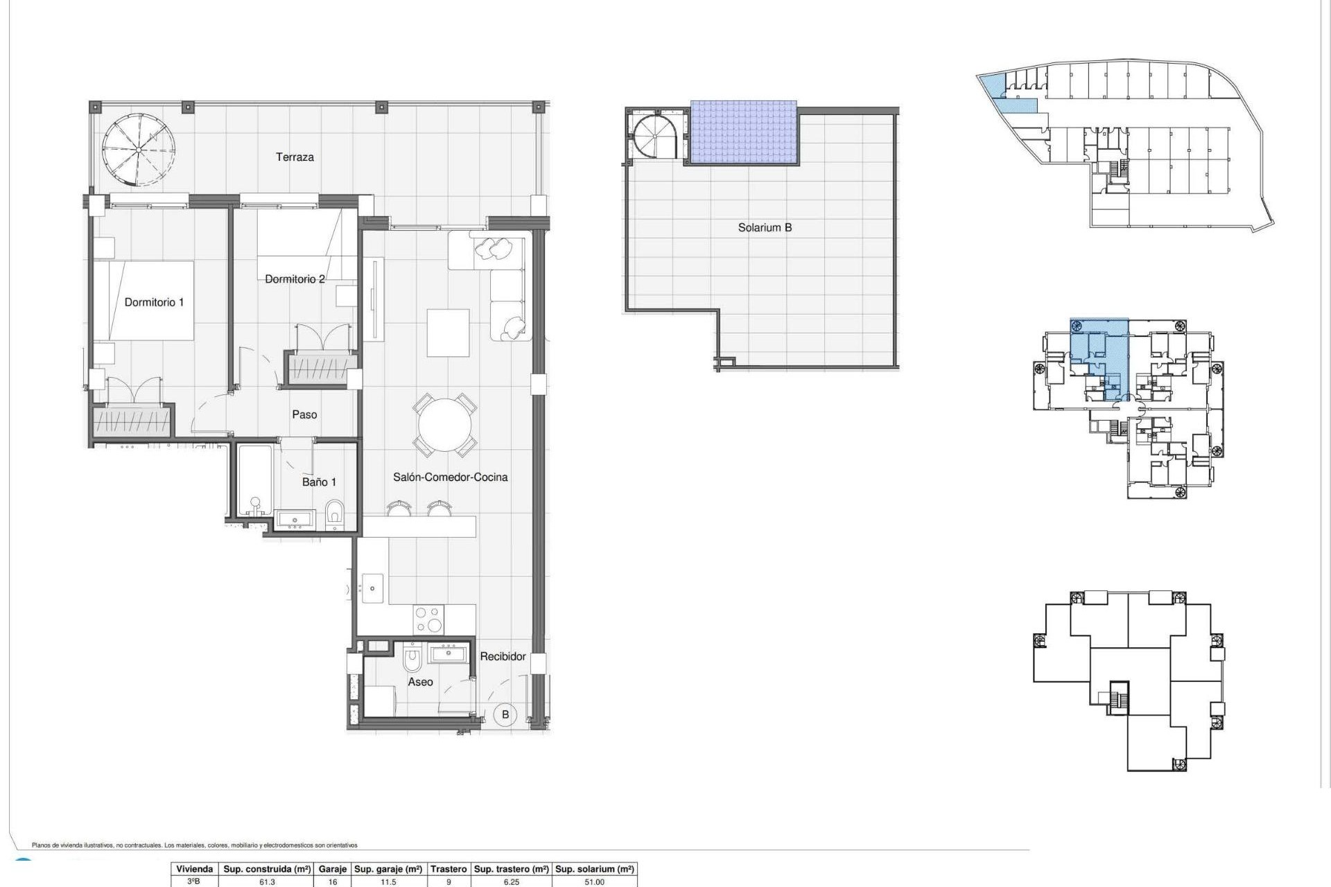
Nieuwbouwappartementen in Bigastro Costa Blanca Modern wonen in Vega Baja del Segura Dit nieuwe woonproject ligt in het hart van de regio Vega Baja del Segura, in het charmante stadje Bigastro, Alicante. Bigastro staat bekend om zijn rustige sfeer en traditionele omgeving en biedt een uitstekende balans tussen natuur, comfort en de nabijheid van de belangrijkste kustbestemmingen van de Costa Blanca. Op slechts enkele minuten van Orihuela en binnen handbereik van Torrevieja en Guardamar del Segura, is deze locatie ideaal voor wie op zoek is naar rust zonder in te boeten aan bereikbaarheid en voorzieningen. Eigentijdse appartementen met buitenruimtes Het gebouw bestaat uit een begane grond en drie verdiepingen en biedt moderne appartementen met 2 slaapkamers, 1 badkamer en 1 gastentoilet, met voldoende ruimte om een extra douche toe te voegen. Elke woning is ontworpen om de ruimte en het natuurlijke licht optimaal te benutten. De appartementen op de begane grond hebben grote terrassen of privétuinen, de appartementen op de middelste verdiepingen hebben ruime terrassen en de penthouses hebben een eigen solarium, perfect om het hele jaar door buiten te leven. Hoogwaardige afwerking en inbegrepen voorzieningen Alle appartementen worden opgeleverd met hoogwaardige specificaties die zijn ontworpen voor comfort en efficiëntie. Tot de voorzieningen behoren volledige airconditioning via luchtkanalen, ingerichte keukens met apparatuur, elektrische rolluiken en badkamers met meubilair, spiegels en doucheschermen. Bij elke woning hoort een ondergrondse parkeerplaats en sommige woningen hebben ook een eigen berging. Gemeenschappelijke ruimtes en mediterrane levensstijl Het wooncomplex biedt een goed ontworpen gemeenschappelijk zwembad en aangelegde tuinen, waardoor een ontspannen omgeving voor de bewoners wordt gecreëerd. Omgeven door traditionele landbouwgrond, glooiende heuvels en wandelpaden, nodigt het gebied uit tot buitenactiviteiten zoals wandelen en fietsen, wat een gezonde mediterrane levensstijl in een veilige en gastvrije omgeving ondersteunt. Locatie en lokale voorzieningen van Bigastro Bigastro is een gezellige gemeente in het zuiden van Alicante met alle essentiële voorzieningen in de buurt, waaronder supermarkten, scholen, medische centra, sportfaciliteiten en een gevarieerd gastronomisch aanbod. Ondanks de rustige omgeving beschikt de stad over uitstekende wegverbindingen via de snelweg AP 7, waardoor reizen langs de Costa Blanca snel en gemakkelijk is. Afstanden tot belangrijke bezienswaardigheden Centrum van Orihuela: 5 km Stranden van Guardamar del Segura: 25 km Torrevieja: 30 km Winkelcentrum Zenia Boulevard: 30 km Internationale luchthaven Alicante Elche: 55 km Dichtstbijzijnde golfbanen: 20 km Een ideale woning of investeringsmogelijkheid Of u nu op zoek bent naar een permanente woning, een vakantiehuis of een slimme investering aan de Costa Blanca, deze nieuwbouwwoningen in Bigastro bieden een modern design, een uitstekende prijs-kwaliteitverhouding en een uitstekende locatie. Neem vandaag nog contact met ons op voor meer informatie of om een bezichtiging te regelen en uw nieuwe woning in de regio Vega Baja veilig te stellen.