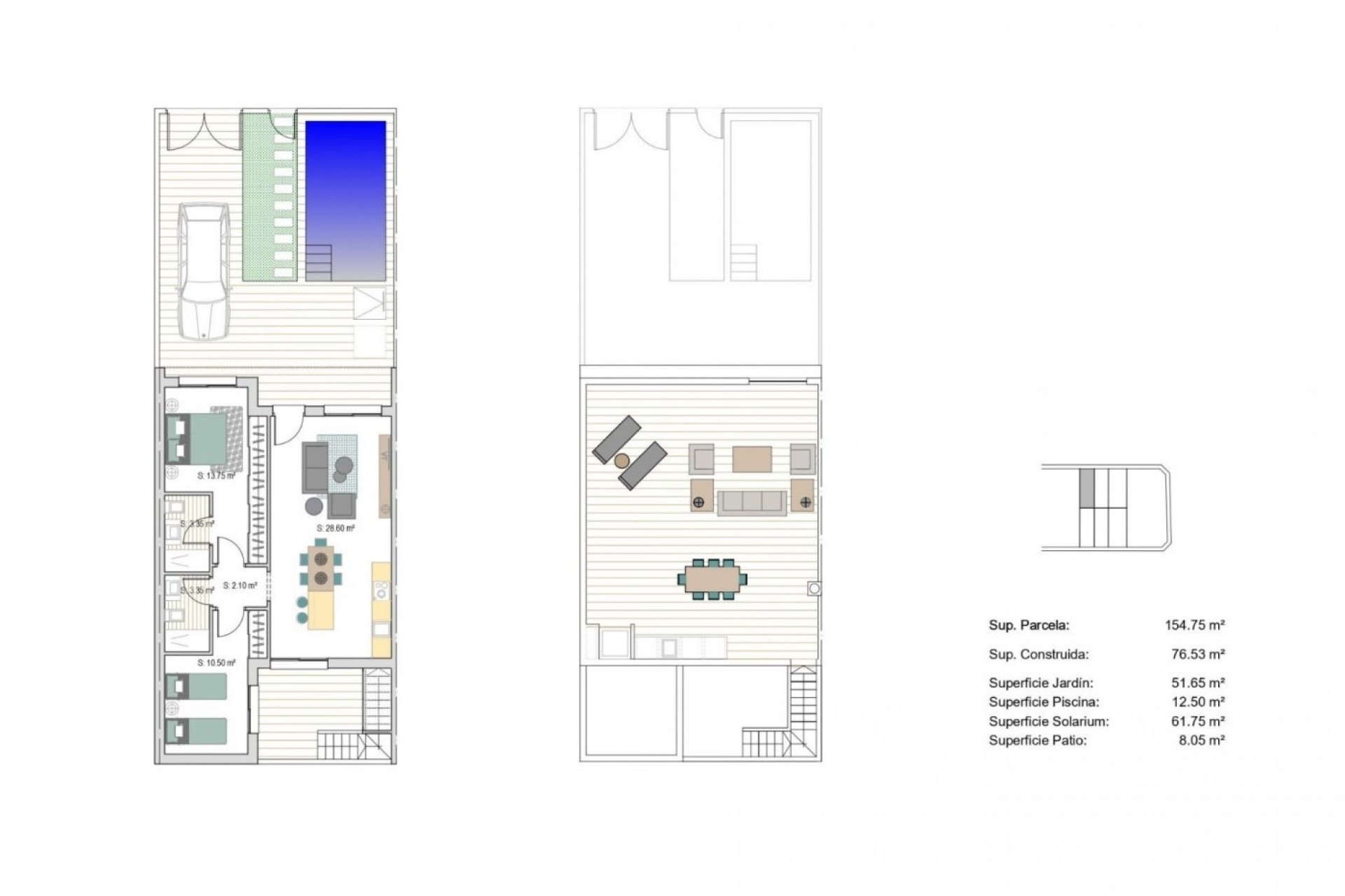
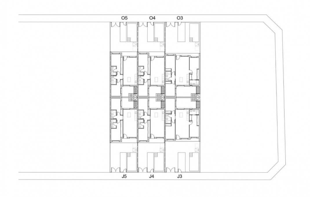
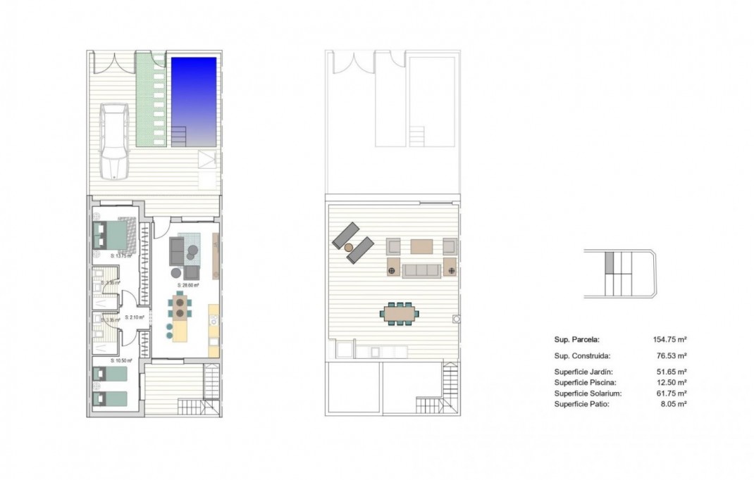
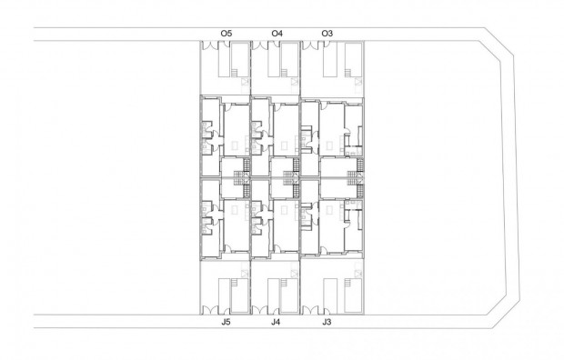
Campoverde47 casas

1.218 Woningen


WhatsApp