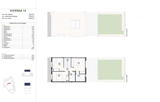
Modern 3 Bedroom Townhouses for Sale in Balcon de Finestrat Costa Blanca Contemporary Homes in a Prime Mediterranean Location This new residential development of 3 bedroom, 2 bathroom and 1 guest toilet townhouses is located in Balcon de Finestrat, a peaceful and well maintained area on the Costa Blanca. Just minutes from Benidorm and next to the Puig Campana Golf Course, this location offers an ideal balance of nature, sea and essential services. The area is known for its beautiful mountain scenery, easy access to leisure areas and a pleasant climate throughout the year. Modern Design with Bright and Functional Interiors The townhouses feature a modern open plan layout. The ground floor integrates a spacious kitchen, dining and living area filled with natural light, as well as a guest toilet. On the upper floor, the double bedrooms and fully equipped bathrooms provide comfort and privacy for the whole family. Some units include a 50 m2 basement with pre installation for an additional bathroom and an open space that owners can customize, with direct access to the garden. Outdoor Spaces Designed for Mediterranean Living Each property offers generous terraces, ideal for enjoying the views of the natural surroundings and the sunny Costa Blanca weather. The community features a swimming pool, landscaped gardens and outdoor relaxation areas, creating a peaceful environment for residents. High Quality Finishes and Energy Efficiency Homes include fully fitted bathrooms with furniture, mirror and shower screens, complete air conditioning installation, solar panels for electrical support, armored front door and Energy Certificate A. Basements come with pre installation for air conditioning splits. Excellent Connectivity and Nearby Services The sandy beaches of Benidorm and Villajoyosa are just 4 km away, and the La Marina shopping center is only a short drive, offering restaurants, shops and entertainment. Nearby you will find international schools, supermarkets and all daily amenities. Distances of interest: Alicante Airport 40 km, Puig Campana Golf Course 1 km, Benidorm beaches 4 km, Villajoyosa port 9 km. A Lifestyle of Comfort and Convenience Each property includes one or two private outdoor parking spaces, ensuring practicality and comfort year round. Contact us today to schedule a viewing and secure your new home in Balcon de Finestrat.