Campoverde47 casas

Vera · ALMERIA Apartment · New Build

315.000 €

Vera · ALMERIA Apartment · New Build

Description

Characteristics

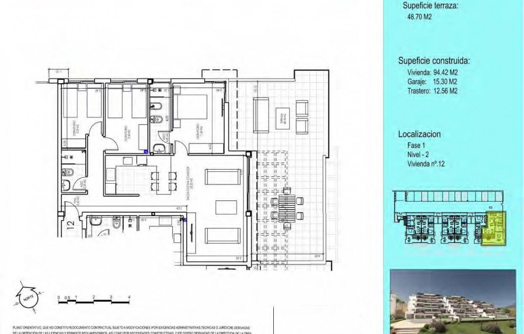
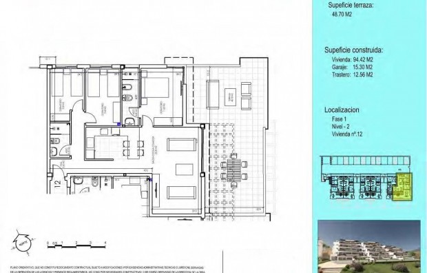
  • 94 m2
  • 3
  • 2
Bedrooms: 3
Bathrooms: 2
Built: 94m2
Pool: Yes
Storage / Trastero
Gated
Number of Parking Spaces: 1
Near Schools
Double Bedrooms: 3
Near Commercial Center
Communal Pool
Location: Coastal, Urbanisation
Elevator/Lift
Views: Sea
Furnished
Terrace: 48 Msq.
Useable Build Space: 85 Msq.
Parking - Space
Beach: 700 Meters

Location

Make your enquiry

Responsable del tratamiento: Bart Groeneveld, Finalidad del tratamiento: Gestión y control de los servicios ofrecidos a través de la página Web de Servicios inmobiliarios, Envío de información a traves de newsletter y otros, Legitimación: Por consentimiento, Destinatarios: No se cederan los datos, salvo para elaborar contabilidad, Derechos de las personas interesadas: Acceder, rectificar y suprimir los datos, solicitar la portabilidad de los mismos, oponerse altratamiento y solicitar la limitación de éste, Procedencia de los datos: El Propio interesado, Información Adicional: Puede consultarse la información adicional y detallada sobre protección de datos Aquí.
WhatsApp