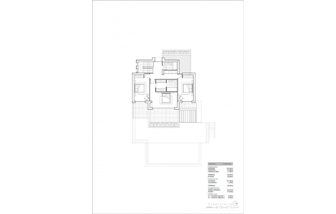
Sea view villa with Ibizan charm in La Fustera, Benissa This stunning newly built villa combines the elegance of contemporary architecture with the warmth and character of Ibizan design. Located in the sought-after area of La Fustera (Benissa Costa), it enjoys panoramic sea views and is just minutes from the beach, supermarkets, restaurants and other essential services. Set on a plot of over 1,000 m², the property is distributed over two levels and offers a total of 4 spacious bedrooms and 3 bathrooms. The ground floor features an open-plan layout with a large living room, dining area and fully equipped kitchen with island and breakfast bar. Floor-to-ceiling sliding doors connect the interior with a generous south-facing terrace, creating a perfect indoor-outdoor flow. This level also includes a bedroom and a bathroom. Outside, the villa boasts several relaxation and dining areas, a pergola-covered BBQ space, and an inviting swimming pool surrounded by lush landscaping and sun loungers. On the upper floor, there are three additional bedrooms (including the master suite with en-suite bathroom and private terrace), as well as a second terrace with beautiful views. The home is fully equipped for year-round comfort and includes underfloor heating, ducted air conditioning, and high-quality finishes throughout. Additional features include a technical room for the heating system and a separate room for pool equipment, both located underground to maximize space and functionality. Secure your dream villa in La Fustera, Benissa Costa, and embrace the ultimate Mediterranean lifestyle with breathtaking sea views and unmatched comfort.