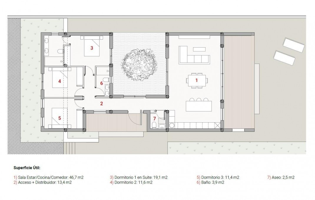
Modern Single-Storey Villas with Private Pool in Finestrat – Tranquility Meets Coastal Living Exclusive New Build Villas on Spacious Plots Discover an exclusive collection of 7 new build villas in Finestrat, each thoughtfully designed on a single floor with 3 bedrooms, 2 bathrooms, and 1 guest toilet. Set on generous plots of over 600 m², these properties offer an ideal blend of space, privacy, and elegance. Surrounded by lush Mediterranean landscaping and mountain views, these homes deliver a serene lifestyle just minutes from the vibrant coast of Benidorm. Elegant Design and Premium Outdoor Spaces Every villa is conceived as a peaceful oasis, featuring modern architecture and natural elements. The entrance welcomes you with a wide, elegant driveway and a covered carport. A landscaped garden filled with native plants and blooming trees sets the tone for a tranquil lifestyle. At the center of the home, a private courtyard adds charm and natural light, while the expansive garden includes a beautiful private pool surrounded by greenery and sunbathing areas. This outdoor sanctuary is perfect for entertaining or simply relaxing under the Mediterranean sun. High-Quality Finishes and Comfort These villas are built to high standards, with premium finishes and thoughtful features including: Double-glazed aluminium windows with thermal break for energy efficiency Fully equipped bathrooms with furniture, mirrors, and walk-in showers with screens Pre-installation for ducted air conditioning for year-round climate control Motorized vehicle access gate Private pool and landscaped garden Elegant modern kitchen and open-plan living space filled with natural light Prime Location in Finestrat, Close to Benidorm and the Coast Located in the picturesque town of Finestrat, these villas enjoy excellent connectivity to services and amenities: Beaches of Benidorm: less than 3 km La Marina Shopping Centre: 1 km Puig Campana Golf: 3 km Benidorm Old Town and entertainment area: 4 km Alicante International Airport: 55 km (approx. 40 minutes by car) Easy access to the A7 motorway for fast travel to Alicante, Valencia, and beyond This location offers the peace of a natural setting with quick access to shops, restaurants, golf courses, and the Mediterranean coast. Experience luxury, comfort, and nature in perfect harmony. Contact us now to schedule a visit or request more information about these unique villas in Finestrat.